مسقط - الرؤية
نشرت الجريدة الرسمية في العدد رقم (1617) الصادر اليوم الأحد، تفاصيل المرسوم السلطاني رقم 88/2025م بإنشاء المنطقة الاقتصادية الخاصة في الروضة
نحن هيثم بن طارق سلطان عمان
بعد الاطلاع على النظام الأساسي للدولة، وعلى المرسوم السلطاني رقم 5/ 2020م بإنشاء الهيئة العامة للمناطق الاقتصادية الخاصة والمناطق الحرة وتحديد اختصاصاتها، وعلى قانون المناطق الاقتصادية الخاصة والمناطق الحرة الصادر بالمرسوم السلطاني رقم ٣٨ / ٢٠٢٥ م، وبناء على ما تقتضيه المصلحة العامة،
رسمنا بما هو آت
المادة الأولى
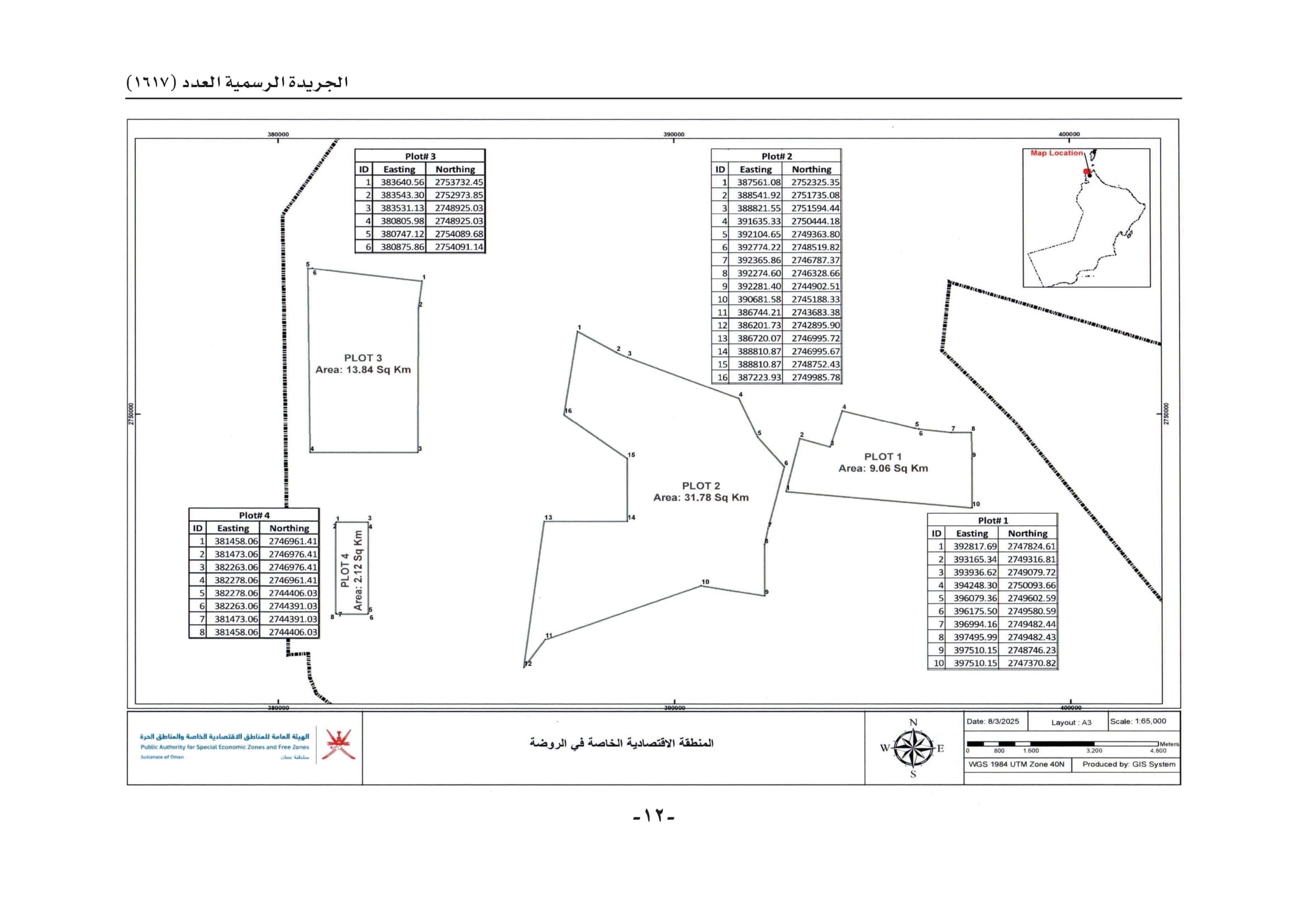
تنشأ منطقة اقتصادية خاصة في نيابة الروضة في ولاية محضة في محافظة البريمي تسمى "المنطقة الاقتصادية الخاصة في الروضة" على مساحة الأرض المحددة وفقًا للمخطط المرفق.
المادة الثانية
يتولى مجلس إدارة الهيئة العامة للمناطق الاقتصادية الخاصة والمناطق الحرة تعيين من يقوم بإدارة وتشغيل وتطوير المنطقة الاقتصادية الخاصة في الروضة.
المادة الثالثة
تمنح المشروعات المقامة في المنطقة الاقتصادية الخاصة في الروضة الحوافز والمزايا والإعفاءات والتسهيلات المنصوص عليها في قانون المناطق الاقتصادية الخاصة والمناطق الحرة المشار إليه.
المادة الرابعة
ينشر هذا المرسوم في الجريدة الرسمية، ويعمل به من اليوم التالي لتاريخ نشره.

